Accommodation

If you love old buildings and want to experience something quite special…

A bedroom with historic decor, a large bed with floral headboard, white bedding, green blanket, and red bed skirt, wooden furniture, lamps, chairs, plants, and a fireplace.

Relaxing Breaks

All upper floors - limited to 6 people.

If you love old buildings and want to experience something quite special why not book for a long weekend or a longer break to experience the full impact of living within a 16th century house in the centre of Launceston just off the square. Absorb the atmosphere, share times of relaxation. Time travel with those who came before us.

Eat and drink well and then at the days end you can sink into cosy warm beds in rooms that have hosted generations of folk and sleep soundly. Why not book a two centre break at Trevadlock Manor to enjoy relaxing country atmosphere on the edge of Bodmin moor. 

For over 450 years merchants Lord Mayors, surgeons, politicians, leaders, shopkeepers, painters, decorators ,joiners, railwaymen and carters have all laid their heads on pillows to sleep soundly after a hard days work. 

No work for you, just soak up the atmosphere and enjoy the locality. 

Remember that as this is an old building the floors are uneven, doors are low and facilities modest, but it is full of historic character.

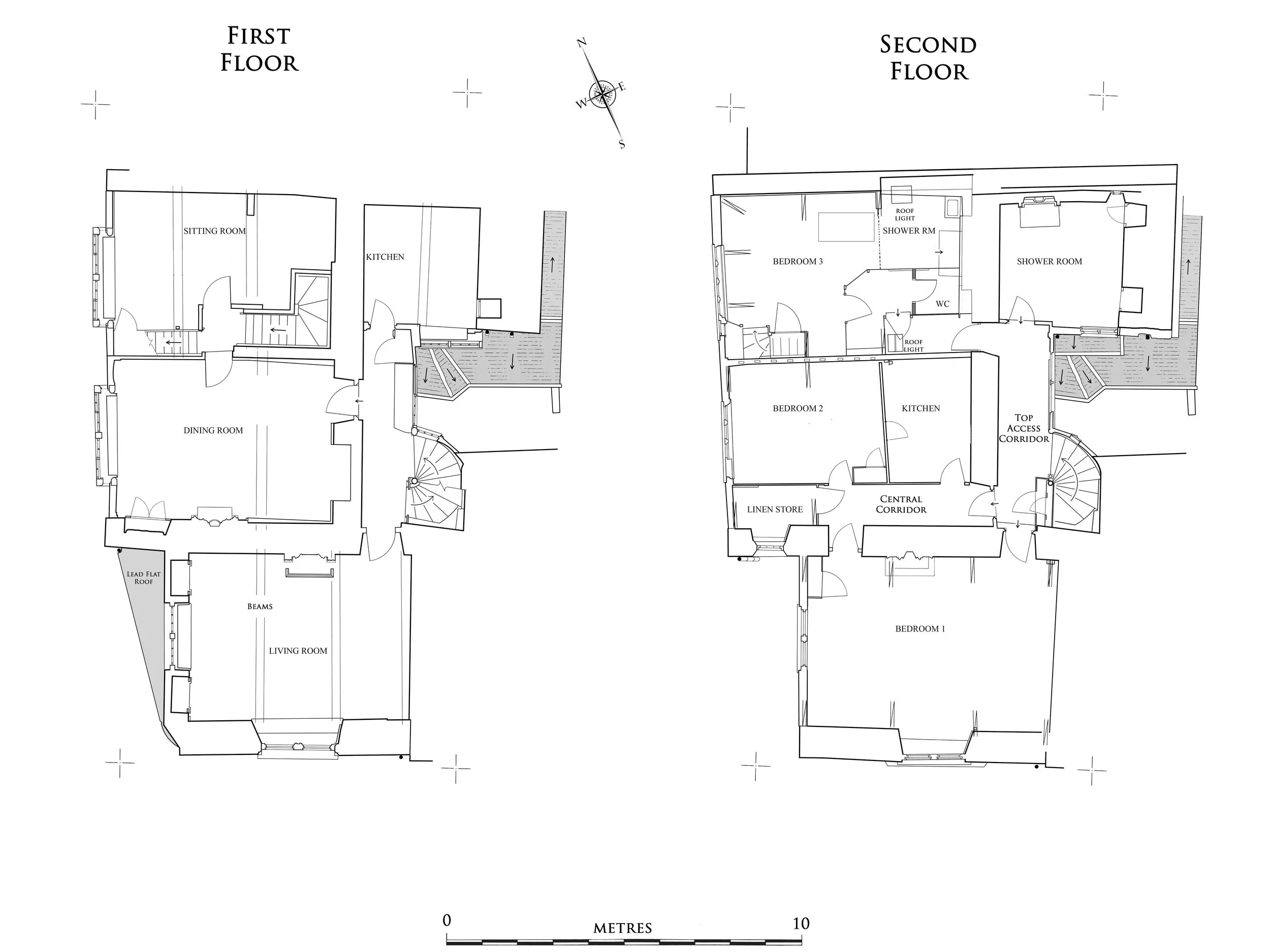
The accommodation can be let as three double bedrooms with two bathrooms on the second floor. The rooms have views to the castle and town square.

On the first floor there is a well appointed kitchen and three good sized living rooms including the fine plastered dining room and comfortable double aspect sitting room.

Availability for accommodation by arrangement between May to October. Prices from £750 for a three night stay for six people. Unfortunately due to the sensitive nature of the building no children under 14 can stay.

Historic, weathered wooden door slightly open, leading into a room with a bed and a white wall, with peeling paint and exposed wood framing around the door.

We place a limit on the number of people using the building at one time to respect and take care of the fabric.

Shared Learning

Upper floors - limited to 14 people in total at one time. 

Merchant House is laid out so that it can offer an inspiring environment in which to host, mentor or lead cultural events. 

The second floor can be closed off for an Artist or Poet in residence or other such leader to reside within, absorb and be inspired by the history and environment of the building and its location.

This would provide an independent bed sitting room and separate double bedroom along with at least one bathroom and a kitchenette.

The  first floor offers three separate reception areas which can be used for mentoring, training or inspiration by the group leader. This space also has a kitchen area and access to lavatory facilities.

Prices subject specific use requirements.

Living room with wooden floor, patterned curtains, a fireplace, and vintage furniture, including a striped sofa and wooden chairs.
A wooden table with desserts including a layered cake on a cake stand, cupcakes with frosting, and a stack of plates with silverware, next to a wall with a partial yellow wooden door and a green wall, with two vintage metal containers on a shelf.
A living room with sofas, colorful pillows, a fireplace, and framed artwork on the white walls.

Public or community use

First floor only - limited to 14 people in total.

The three first floor rooms are available for public use and letting subject to agreement arrangement. This offers one comfortable sitting room along with a smaller sitting area and a dining or entertainment space. This can be used for small meetings, training and entertaining all subject to previous discussions and agreement. 

Prices start from £50 per session.

Historic living room with wood plank flooring, patterned curtains, a striped sofa with pillows, a fireplace, and a wooden desk with chairs near a window.
A historic living room with a beige sofa with red pillows, a wooden side table with a plant and books, an upholstered armchair, a window with blue framing and floral curtains, and a small ottoman with floral embroidery.
ENQUIRE